Description
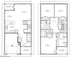
Welcome to the Monroe, a new home floor plan located at Chateau Nemours in Port St Joe, Florida. This floor plan features two stories with three bedrooms and two and a half bathrooms. The exterior of this home features a covered front porch on the main level and a covered balcony on the second level just off the primary bedroom. Entering the foyer you are greeted with an open entry that leads to the grand living space with open concept design. The kitchen is open to the dining and living areas features a peninsula bar with space for seating. There is an appointed dining area that is surrounded with windows allowing for an abundance of natural light to filter through. Traditional 9' ceilings grace the living area which opens to the covered back porch where you can spend your mornings and evenings enjoying your coffee or beverage. The main level serves as the heart of the home with plenty of space and a powder room located just off the entry. The stairs leading to the second level are accessible from the living area and lead to all three bedrooms. As you reach the second level you are met with a landing with laundry area and shared bathroom. Two bedrooms are located at the back of the home and have spacious closets. The Primary bedroom is located overlooking the front lawn and has a private ensuite bathroom. Two large closets are located in the primary bedroom and offer plenty of space for your wardrobe needs. The primary bathroom has the feel of a private oasis with a large soak tub and a separate shower. The dual sink vanity offers lower cabinetry for storage. Enjoy a quiet evening with a charming view on your covered balcony located off the primary bedroom. Schedule an appointment and see Chateau Nemours today!
-
3BEDS
-
0.17ACRES
-
2BATHS
-
11/2 BATHS
-
1,846SQFT
-
$214$/SQFT
School Information
Description
Welcome to the Monroe, a new home floor plan located at Chateau Nemours in Port St Joe, Florida. This floor plan features two stories with three bedrooms and two and a half bathrooms. The exterior of this home features a covered front porch on the main level and a covered balcony on the second level just off the primary bedroom. Entering the foyer you are greeted with an open entry that leads to the grand living space with open concept design. The kitchen is open to the dining and living areas features a peninsula bar with space for seating. There is an appointed dining area that is surrounded with windows allowing for an abundance of natural light to filter through. Traditional 9' ceilings grace the living area which opens to the covered back porch where you can spend your mornings and evenings enjoying your coffee or beverage. The main level serves as the heart of the home with plenty of space and a powder room located just off the entry. The stairs leading to the second level are accessible from the living area and lead to all three bedrooms. As you reach the second level you are met with a landing with laundry area and shared bathroom. Two bedrooms are located at the back of the home and have spacious closets. The Primary bedroom is located overlooking the front lawn and has a private ensuite bathroom. Two large closets are located in the primary bedroom and offer plenty of space for your wardrobe needs. The primary bathroom has the feel of a private oasis with a large soak tub and a separate shower. The dual sink vanity offers lower cabinetry for storage. Enjoy a quiet evening with a charming view on your covered balcony located off the primary bedroom. Schedule an appointment and see Chateau Nemours today!
© 2026 Central Panhandle Association of Realtors MLS. All rights reserved. IDX information is provided exclusively for consumers' personal, non-commercial use and may not be used for any purpose other than to identify prospective properties consumers may be interested in purchasing. Information is deemed reliable but is not guaranteed accurate by the MLS or The Coastal Connection at eXp Realty. Data last updated: 2026-03-14T07:04:28.46.

Listing provided courtesy of DR Horton Realty of Emerald Coast, LLC: 850-660-1701. Listing information © 2026 Central Panhandle Association of Realtors MLS.