Description
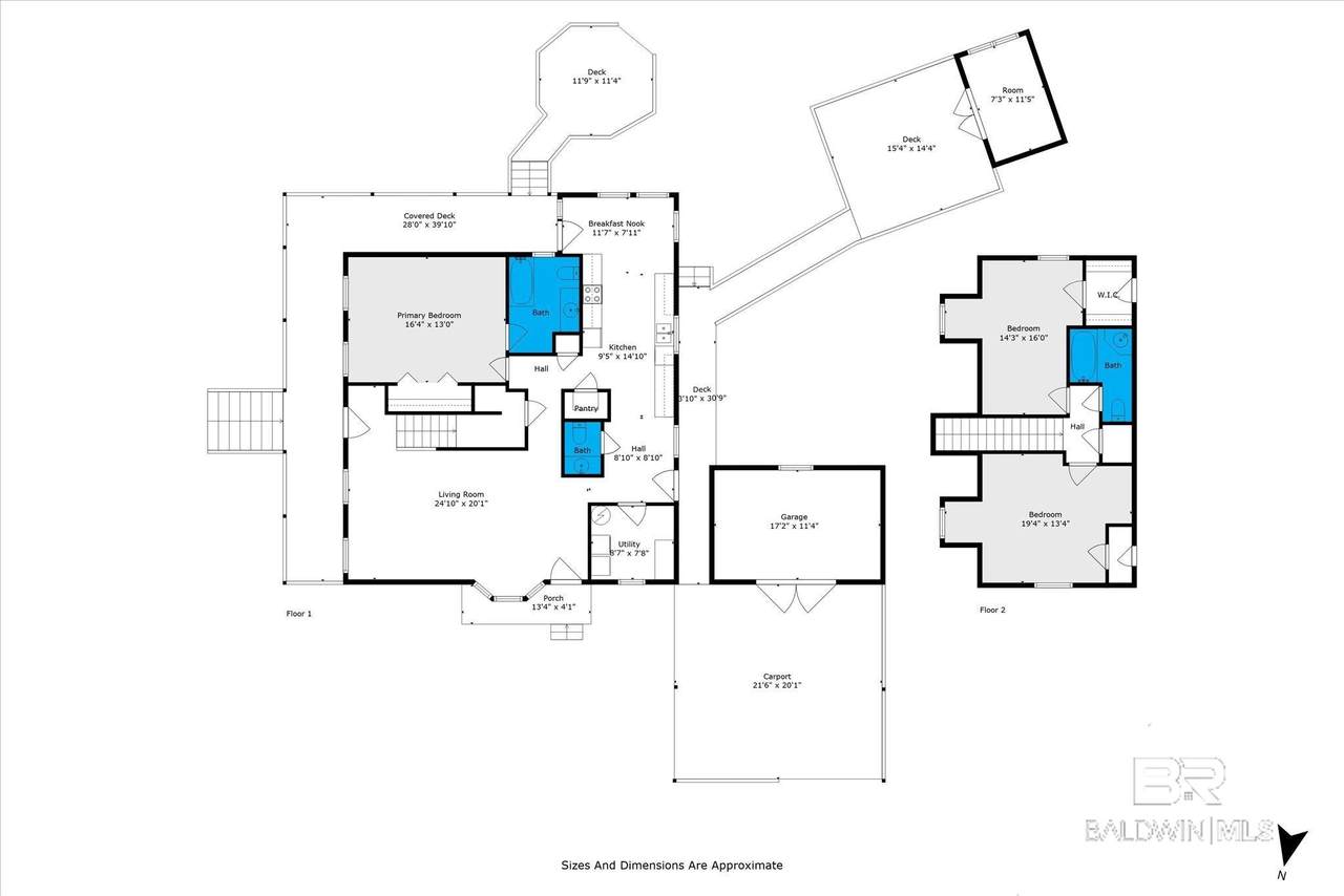
SELLER TO PAY $4K towards buyer's closing costs, prepaid items or rate buy down! Charming Home on Over Half an Acre in Plantation Hills No HOA!Welcome to 124 Richmond Road, situated in the conveniently located Plantation Hills community of Daphne. This delightful home is set on a spacious corner lot exceeding half an acre, offering quick and convenient access to I-10, local restaurants, and shopping.Key Features:Inviting Outdoor Spaces: Enjoy the charm of a wrap-around porch and an additional deckideal for relaxing or entertaining outdoors.Recent Updates:Fortified Roof (2022): Ensures peace of mind for years to come.New HVAC (2025): Stay comfortable year-round with modern climate control.New Carpet and Sod (2025): Fresh upgrades throughout for a polished look.Ample Storage: Two Storage Sheds (one with power) for all your tools and toys.Double Carport plus extra storage space for convenience.Rare Cellar beneath the home adds versatility for additional storage or hobbies.Inside Features:Light-Filled Main Level: The spacious living room welcomes you with natural light, leading into a kitchen equipped with abundant cabinetry and counter space.Sunny Breakfast Area: Direct access to the porch makes it perfect for morning coffee.Convenient Main Floor Primary Suite: Enjoy easy living with the primary bedroom on the main floor.Upper Level:Two Additional Bedrooms: Perfect for family or guests.Full Bath: Conveniently located upstairs.Excellent Storage Options: Large under-stair closet, multiple storage closets, and extra space beneath the home.This unique property combines charm, modern upgrades, and everyday functionalityall with no HOA and USDA eligibility. Come see why 124 Richmond Road is the perfect place to call home!Buyer to verify all information during due diligence. Buyer to verify all information during due diligence.
-
3BEDS
-
0.53ACRES
-
3BATHS
-
01/2 BATHS
-
1,704SQFT
-
$190$/SQFT
School Information
Description
SELLER TO PAY $4K towards buyer's closing costs, prepaid items or rate buy down! Charming Home on Over Half an Acre in Plantation Hills No HOA!Welcome to 124 Richmond Road, situated in the conveniently located Plantation Hills community of Daphne. This delightful home is set on a spacious corner lot exceeding half an acre, offering quick and convenient access to I-10, local restaurants, and shopping.Key Features:Inviting Outdoor Spaces: Enjoy the charm of a wrap-around porch and an additional deckideal for relaxing or entertaining outdoors.Recent Updates:Fortified Roof (2022): Ensures peace of mind for years to come.New HVAC (2025): Stay comfortable year-round with modern climate control.New Carpet and Sod (2025): Fresh upgrades throughout for a polished look.Ample Storage: Two Storage Sheds (one with power) for all your tools and toys.Double Carport plus extra storage space for convenience.Rare Cellar beneath the home adds versatility for additional storage or hobbies.Inside Features:Light-Filled Main Level: The spacious living room welcomes you with natural light, leading into a kitchen equipped with abundant cabinetry and counter space.Sunny Breakfast Area: Direct access to the porch makes it perfect for morning coffee.Convenient Main Floor Primary Suite: Enjoy easy living with the primary bedroom on the main floor.Upper Level:Two Additional Bedrooms: Perfect for family or guests.Full Bath: Conveniently located upstairs.Excellent Storage Options: Large under-stair closet, multiple storage closets, and extra space beneath the home.This unique property combines charm, modern upgrades, and everyday functionalityall with no HOA and USDA eligibility. Come see why 124 Richmond Road is the perfect place to call home!Buyer to verify all information during due diligence. Buyer to verify all information during due diligence.
Related Properties
Listing information © 2025 Baldwin County Association of REALTORS® MLS. IDX information is provided exclusively for consumers' personal, non-commercial use and may not be used for any purpose other than to identify prospective properties consumers may be interested in purchasing. Data is deemed reliable but is not guaranteed accurate by the MLS or The Coastal Connection at eXp Realty. Data last updated 2025-11-07T10:27:44.537.

Listing provided by South Coast Properties: . Listing information © 2025 Baldwin County Association of REALTORS® MLS.