Description
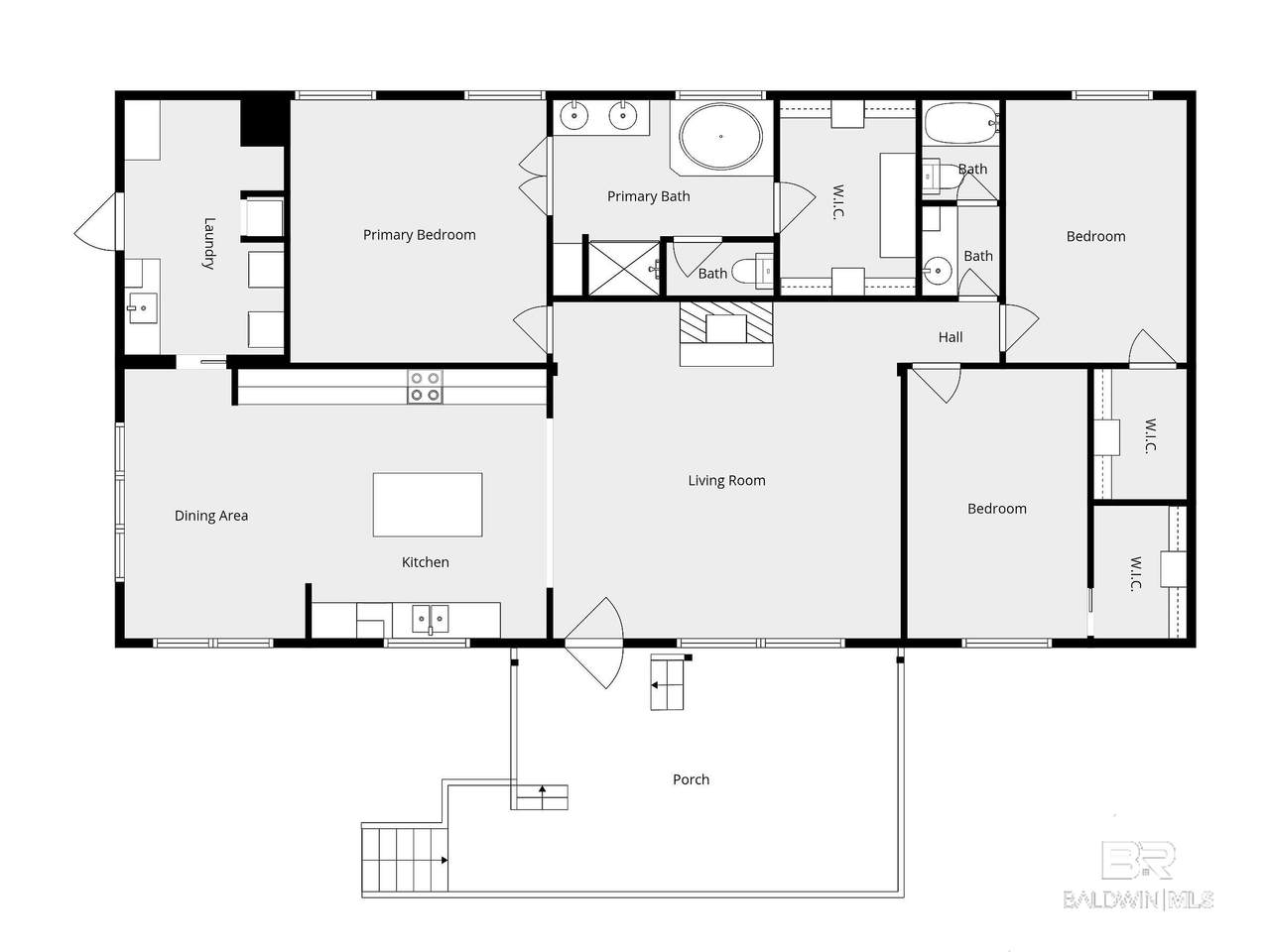
Welcome to this spacious 3-bedroom, 2-bath manufactured home built in 2016, located in the Crystal Orchard Estates community. Offering approximately 1,800 square feet of living space, this well-maintained home sits on 0.40 of an acre, providing plenty of room to enjoy both indoor and outdoor living. Inside, you’ll find durable vinyl flooring throughout the main living areas and a cozy fireplace that creates a warm focal point in the living room—great for relaxing evenings at home. The open layout offers generous living space and comfortable bedrooms, making it everyday living. Step outside to enjoy the covered front porch, a great spot for morning coffee or unwinding at the end of the day. The property also offers ample yard space for outdoor activities, gardening, or future additions. Conveniently located near shopping, dining, and entertainment, this home combines space, comfort, and accessibility. Priced at $215,000, this property offers a great opportunity. Buyer to verify all information during due diligence.
-
3BEDS
-
0.4ACRES
-
2BATHS
-
01/2 BATHS
-
1,800SQFT
-
$119$/SQFT
School Information
Description
Welcome to this spacious 3-bedroom, 2-bath manufactured home built in 2016, located in the Crystal Orchard Estates community. Offering approximately 1,800 square feet of living space, this well-maintained home sits on 0.40 of an acre, providing plenty of room to enjoy both indoor and outdoor living. Inside, you’ll find durable vinyl flooring throughout the main living areas and a cozy fireplace that creates a warm focal point in the living room—great for relaxing evenings at home. The open layout offers generous living space and comfortable bedrooms, making it everyday living. Step outside to enjoy the covered front porch, a great spot for morning coffee or unwinding at the end of the day. The property also offers ample yard space for outdoor activities, gardening, or future additions. Conveniently located near shopping, dining, and entertainment, this home combines space, comfort, and accessibility. Priced at $215,000, this property offers a great opportunity. Buyer to verify all information during due diligence.
Related Properties
Listing information © 2026 Baldwin County Association of REALTORS® MLS. IDX information is provided exclusively for consumers' personal, non-commercial use and may not be used for any purpose other than to identify prospective properties consumers may be interested in purchasing. Data is deemed reliable but is not guaranteed accurate by the MLS or The Coastal Connection at eXp Realty. Data last updated 2026-04-14T23:27:44.73.

Listing provided by Elite RE Solutions, LLC Gulf C: PHONE: 402-968-4373. Listing information © 2026 Baldwin County Association of REALTORS® MLS.