Description
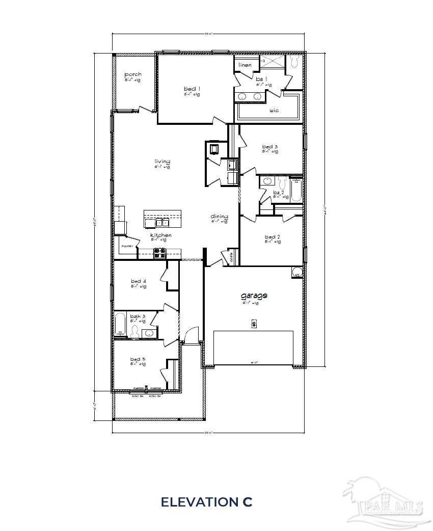
Welcome to Chase Farms, a stunning new home community in Pace! The stunning Lakeside floor plan boasts five bedrooms and three bathrooms, along with a two-car garage. As you enter, you'll find guest bedrooms four and five located at the front of the home, separated by a guest bathroom. The kitchen features an island, quartz countertops, a spacious pantry, and modern stainless-steel appliances. Next to the dining area, a hallway leads to guest bedrooms two and three, as well as a second guest bathroom. Bedroom one acts as a private retreat, conveniently situated off the living area, complete with a luxurious bathroom and a large walk-in closet. This home is also equipped with a Smart Home Technology package. Located near top-rated schools, grocery stores, shopping centers, and local dining, Chase Farms provides easy access to everything you need while maintaining a peaceful, small-town atmosphere. We invite you to schedule a tour today!
-
5BEDS
-
0.33ACRES
-
3BATHS
-
01/2 BATHS
-
2,012SQFT
-
$158$/SQFT
School Information
Description
Welcome to Chase Farms, a stunning new home community in Pace! The stunning Lakeside floor plan boasts five bedrooms and three bathrooms, along with a two-car garage. As you enter, you'll find guest bedrooms four and five located at the front of the home, separated by a guest bathroom. The kitchen features an island, quartz countertops, a spacious pantry, and modern stainless-steel appliances. Next to the dining area, a hallway leads to guest bedrooms two and three, as well as a second guest bathroom. Bedroom one acts as a private retreat, conveniently situated off the living area, complete with a luxurious bathroom and a large walk-in closet. This home is also equipped with a Smart Home Technology package. Located near top-rated schools, grocery stores, shopping centers, and local dining, Chase Farms provides easy access to everything you need while maintaining a peaceful, small-town atmosphere. We invite you to schedule a tour today!
Related Properties
© 2026 by the Multiple Listing Service of the Pensacola Association of REALTORS®. This information is believed to be accurate but is not guaranteed. Subject to verification by all parties. This data is copyrighted and may not be transmitted, retransmitted, copied, framed, repurposed, or altered in any way for any other site, individual and/or purpose without the express written permission of the Multiple Listing Service of the Pensacola Association of REALTORS®. Florida recognizes single and transaction agency relationships. Information Deemed Reliable But Not Guaranteed. Any use of search facilities of data on this site, other than by a consumer looking to purchase real estate, is prohibited. Data last updated: 2026-01-18T17:54:22.367.
