Description
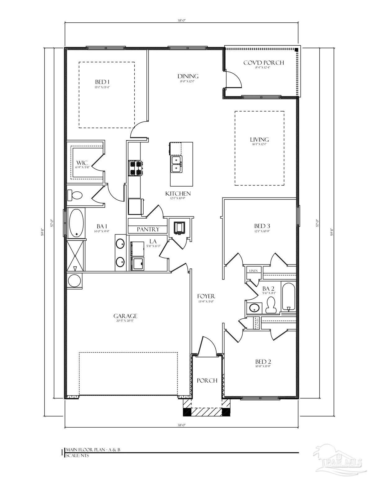
Welcome to 2804 Water Birch Rd! The Lamar plan features 3 bedrooms, 2 bathrooms and a 2-car garage. From the front door the foyer opens to a hallway leading to two bedrooms separated by a full bathroom with linen closet and shower/tub combination. As you continue into home there is the laundry room and the garage access on the opposing wall. The living room, dining and kitchen is an open design. As you enter the great room you are met with the heart of the home, the kitchen. This light design offers white shaker-style cabinetry, quartz countertops and stainless-steel appliances. The dining room is open off the kitchen and looks out to the backyard and covered porch. The primary bedroom is to the back of the home for privacy. The bedroom has a trey ceiling and large window allowing in natural light. The ensuite has a large walk-in closet, separate water closet, tiled shower and garden tub. The dual sink vanity has a quartz countertop and will allow for that much needed space in the morning. This home includes a Home is Connected smart home technology package which allows you to control your home with your smart device while near or away. Residents at Reserve at Brookhaven will enjoy exceptional community amenities, including a resort-style pool, a shaded cabana, and a playground for family fun. Schedule your tour today!
-
3BEDS
-
0.16ACRES
-
2BATHS
-
01/2 BATHS
-
1,697SQFT
-
$201$/SQFT
School Information
Description
Welcome to 2804 Water Birch Rd! The Lamar plan features 3 bedrooms, 2 bathrooms and a 2-car garage. From the front door the foyer opens to a hallway leading to two bedrooms separated by a full bathroom with linen closet and shower/tub combination. As you continue into home there is the laundry room and the garage access on the opposing wall. The living room, dining and kitchen is an open design. As you enter the great room you are met with the heart of the home, the kitchen. This light design offers white shaker-style cabinetry, quartz countertops and stainless-steel appliances. The dining room is open off the kitchen and looks out to the backyard and covered porch. The primary bedroom is to the back of the home for privacy. The bedroom has a trey ceiling and large window allowing in natural light. The ensuite has a large walk-in closet, separate water closet, tiled shower and garden tub. The dual sink vanity has a quartz countertop and will allow for that much needed space in the morning. This home includes a Home is Connected smart home technology package which allows you to control your home with your smart device while near or away. Residents at Reserve at Brookhaven will enjoy exceptional community amenities, including a resort-style pool, a shaded cabana, and a playground for family fun. Schedule your tour today!
© 2026 by the Multiple Listing Service of the Pensacola Association of REALTORS®. This information is believed to be accurate but is not guaranteed. Subject to verification by all parties. This data is copyrighted and may not be transmitted, retransmitted, copied, framed, repurposed, or altered in any way for any other site, individual and/or purpose without the express written permission of the Multiple Listing Service of the Pensacola Association of REALTORS®. Florida recognizes single and transaction agency relationships. Information Deemed Reliable But Not Guaranteed. Any use of search facilities of data on this site, other than by a consumer looking to purchase real estate, is prohibited. Data last updated: 2026-02-14T06:54:31.46.
