Description
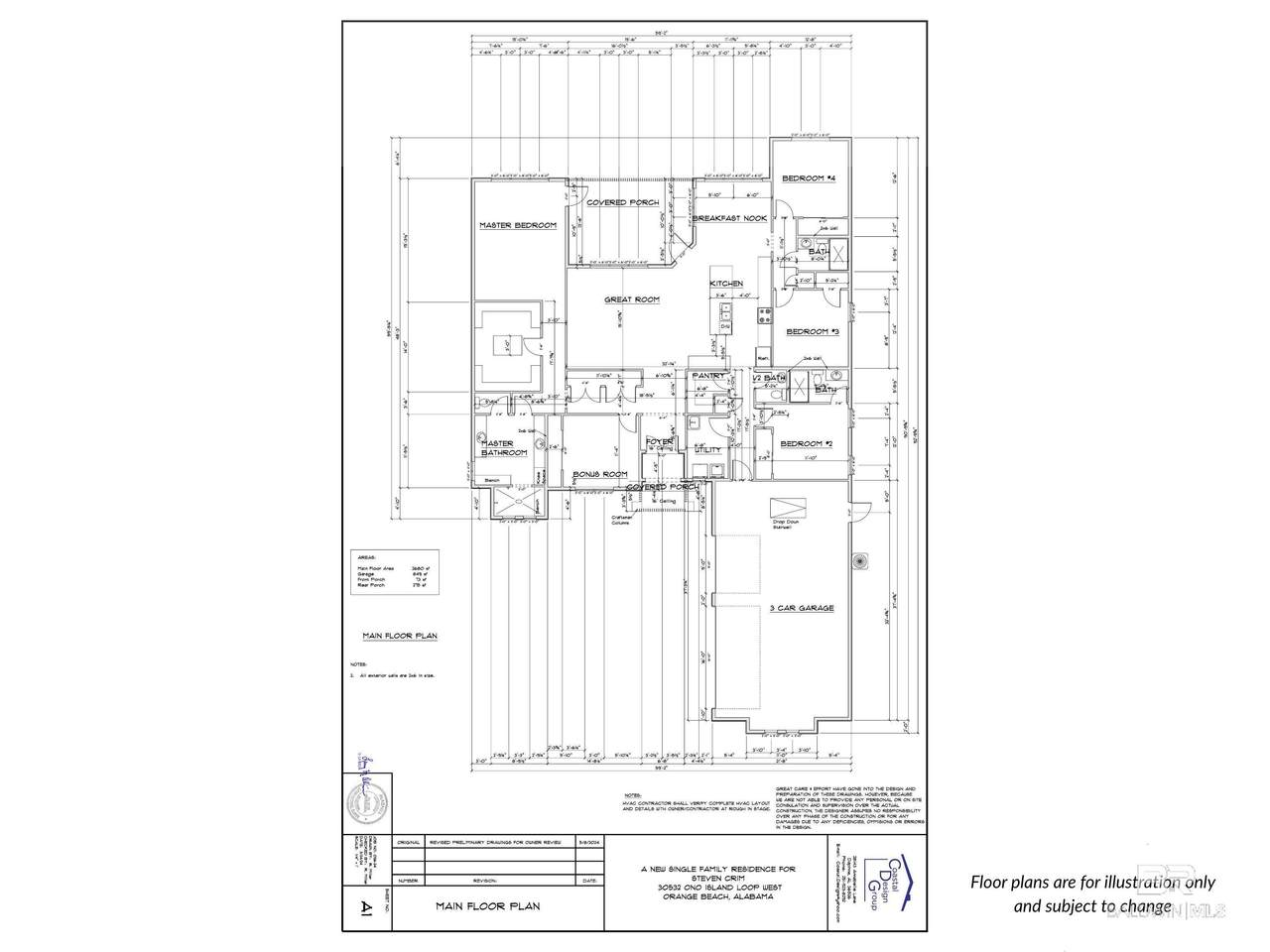
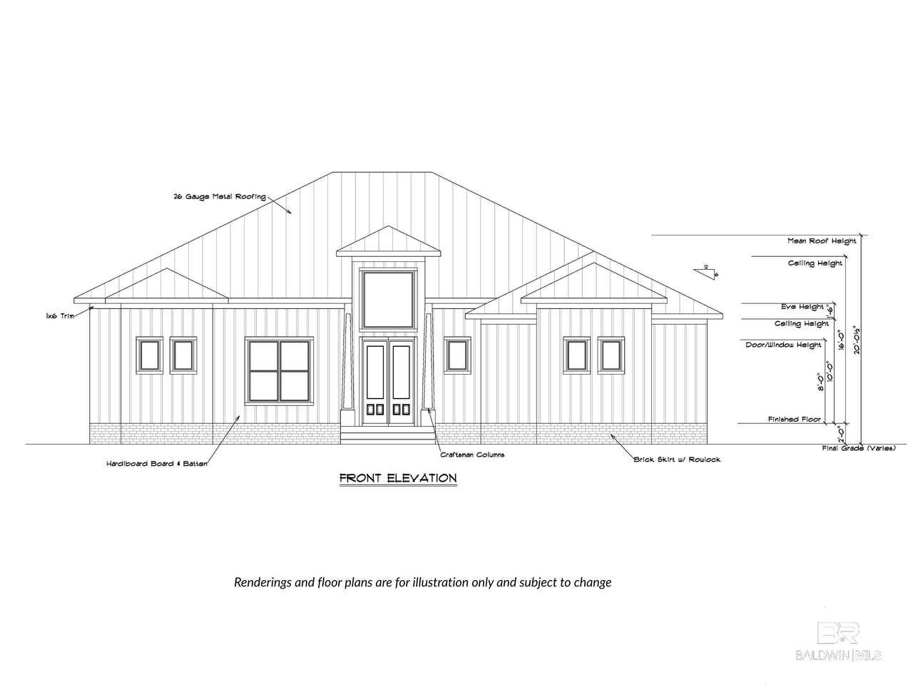
Custom new construction to be built on the quiet street of Ono North Loop West on exclusive Ono Island. This thoughtfully designed residence blends modern coastal architecture with custom finishes, offering both style and durability. Built to Gold Fortified standards, the home provides peace of mind with impact-rated windows, a white metal roof, and superior construction methods engineered for long-term value. The floor plan features five bedrooms, including a bonus room, 3.5 bathrooms with open living spaces centered around a chef’s kitchen, complete with a large quartz island, walk-in pantry, and premium appliances. The private primary suite is a true retreat, featuring a spa-inspired bath with double vanities, soaking tub, and walk-in shower, along with a custom-designed walk-in closet complete with an island and in-wall safe. The back yard includes a covered porch—perfect for quiet mornings and relaxing evenings—with ample room to add a pool at the buyer’s expense. A spacious three-car garage ensures plenty of storage. Situated within the gated community of Ono Island, residents enjoy 24-hour security, a private boat launch, recreation center, and access to some of the best boating waters on the Gulf Coast. This is a rare opportunity to own a custom new construction home on Ono Island.This property may also be constructed using Insulated Concrete Form (ICF) construction for an additional cost. Built to Gold Fortified standards, this home provides insurance savings, energy efficiency, and long-term maintenance benefits. Renderings and floor plans are provided for illustration purposes only and are subject to change without notice. Buyer to verify all information during due diligence.
-
5BEDS
-
0.39ACRES
-
3BATHS
-
11/2 BATHS
-
2,680SQFT
-
$410$/SQFT
School Information
Description
Custom new construction to be built on the quiet street of Ono North Loop West on exclusive Ono Island. This thoughtfully designed residence blends modern coastal architecture with custom finishes, offering both style and durability. Built to Gold Fortified standards, the home provides peace of mind with impact-rated windows, a white metal roof, and superior construction methods engineered for long-term value. The floor plan features five bedrooms, including a bonus room, 3.5 bathrooms with open living spaces centered around a chef’s kitchen, complete with a large quartz island, walk-in pantry, and premium appliances. The private primary suite is a true retreat, featuring a spa-inspired bath with double vanities, soaking tub, and walk-in shower, along with a custom-designed walk-in closet complete with an island and in-wall safe. The back yard includes a covered porch—perfect for quiet mornings and relaxing evenings—with ample room to add a pool at the buyer’s expense. A spacious three-car garage ensures plenty of storage. Situated within the gated community of Ono Island, residents enjoy 24-hour security, a private boat launch, recreation center, and access to some of the best boating waters on the Gulf Coast. This is a rare opportunity to own a custom new construction home on Ono Island.This property may also be constructed using Insulated Concrete Form (ICF) construction for an additional cost. Built to Gold Fortified standards, this home provides insurance savings, energy efficiency, and long-term maintenance benefits. Renderings and floor plans are provided for illustration purposes only and are subject to change without notice. Buyer to verify all information during due diligence.
Listing information © 2026 Baldwin County Association of REALTORS® MLS. IDX information is provided exclusively for consumers' personal, non-commercial use and may not be used for any purpose other than to identify prospective properties consumers may be interested in purchasing. Data is deemed reliable but is not guaranteed accurate by the MLS or The Coastal Connection at eXp Realty. Data last updated 2026-01-25T00:27:42.197.

Listing provided by Bellator RE LLC Orange Beach: PHONE: 970-389-2905. Listing information © 2026 Baldwin County Association of REALTORS® MLS.