Description
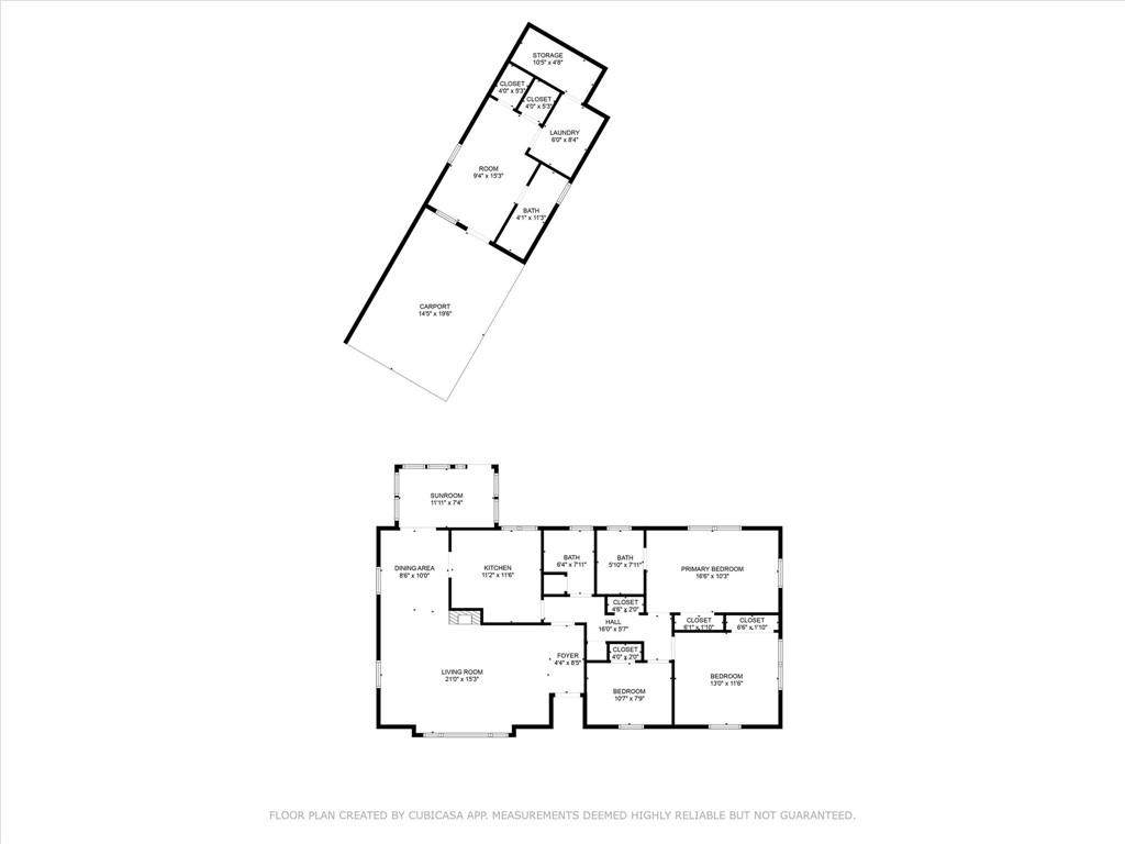
***OPEN HOUSE, SUN., JAN. 25TH, 2-4.***NEW FORTIFIED ROOF (JULY 2025)! DETACHED 1-CAR CARPORT WITH ATTACHED LIVING SPACE! Welcome to this charming cottage-style home in Chateauguay Place. This friendly community offers walkable streets, access to Three Mile Creek Park and Greenway Trail, and is conveniently located near shops, restaurants and interstate access. A brick walkway leads to the inviting front entrance. Inside, the spacious living room is filled with natural light and features a charming corner gas-log fireplace, which can be enjoyed from both the living and dining areas. The open dining area connects seamlessly to the living room and updated kitchen, which boasts granite countertops, stainless steel appliances, a gas range with vent hood, and exposed brick accents that add character and style. The primary bedroom offers an ensuite bathroom with beautiful marble tile finishes and a custom vanity crafted from a Charles Phillips cabinet. Among the two additional bedrooms, one includes lovely built-in shelving, perfect for storage or display. A remodeled hall bath serves these secondary bedrooms. At the back of the home, the enclosed sunroom provides a flexible space that can serve as an office, playroom, exercise room, or additional sitting area. Outdoors, enjoy a fenced backyard with a brick patio, ideal for entertaining or relaxing. The detached 1-car carport includes a versatile guest suite with two closets, full bathroom, laundry area, and lots of additional storage. This space could serve as a studio, home office, workout room, or hobby area. In addition to the carport and driveway there is also an added gravel parking pad. Updates include: Primary bathroom renovation, refaced kitchen cabinets with new drawers and hardware, updated light fixtures throughout, vanity and lighting in guest suite bathroom, gravel parking pad addition, and NEW fortified roof (2025). This Midtown cottage combines timeless charm, thoughtful updates, and flexible living spaces in a wonderful location. Call today to schedule an appointment to make this home your "New Beginning"! Buyer responsible for verifying all measurements and relevant details.
-
3BEDS
-
0.23ACRES
-
2BATHS
-
01/2 BATHS
-
1,498SQFT
-
$207$/SQFT
School Information
Description
***OPEN HOUSE, SUN., JAN. 25TH, 2-4.***NEW FORTIFIED ROOF (JULY 2025)! DETACHED 1-CAR CARPORT WITH ATTACHED LIVING SPACE! Welcome to this charming cottage-style home in Chateauguay Place. This friendly community offers walkable streets, access to Three Mile Creek Park and Greenway Trail, and is conveniently located near shops, restaurants and interstate access. A brick walkway leads to the inviting front entrance. Inside, the spacious living room is filled with natural light and features a charming corner gas-log fireplace, which can be enjoyed from both the living and dining areas. The open dining area connects seamlessly to the living room and updated kitchen, which boasts granite countertops, stainless steel appliances, a gas range with vent hood, and exposed brick accents that add character and style. The primary bedroom offers an ensuite bathroom with beautiful marble tile finishes and a custom vanity crafted from a Charles Phillips cabinet. Among the two additional bedrooms, one includes lovely built-in shelving, perfect for storage or display. A remodeled hall bath serves these secondary bedrooms. At the back of the home, the enclosed sunroom provides a flexible space that can serve as an office, playroom, exercise room, or additional sitting area. Outdoors, enjoy a fenced backyard with a brick patio, ideal for entertaining or relaxing. The detached 1-car carport includes a versatile guest suite with two closets, full bathroom, laundry area, and lots of additional storage. This space could serve as a studio, home office, workout room, or hobby area. In addition to the carport and driveway there is also an added gravel parking pad. Updates include: Primary bathroom renovation, refaced kitchen cabinets with new drawers and hardware, updated light fixtures throughout, vanity and lighting in guest suite bathroom, gravel parking pad addition, and NEW fortified roof (2025). This Midtown cottage combines timeless charm, thoughtful updates, and flexible living spaces in a wonderful location. Call today to schedule an appointment to make this home your "New Beginning"! Buyer responsible for verifying all measurements and relevant details.
Related Properties
© 2026 Gulf Coast Multiple Listing Service, Inc. All rights reserved. All information provided is deemed reliable but is not guaranteed or warranted and should be independently verified. The data relating to real estate for sale on this web site comes in part from the IDX/RETS Program of the Gulf Coast Multiple Listing Service, Inc. IDX/RETS real estate listings displayed which are held by other brokerage firms contain the name of the listing firm. The information being provided is for consumers' personal, non-commercial use and will not be used for any purpose other than to identify prospective properties consumers may be interested in purchasing. Data last updated: 2026-01-20T17:44:55.21.
The Coastal Connection at eXp Realty
