Description
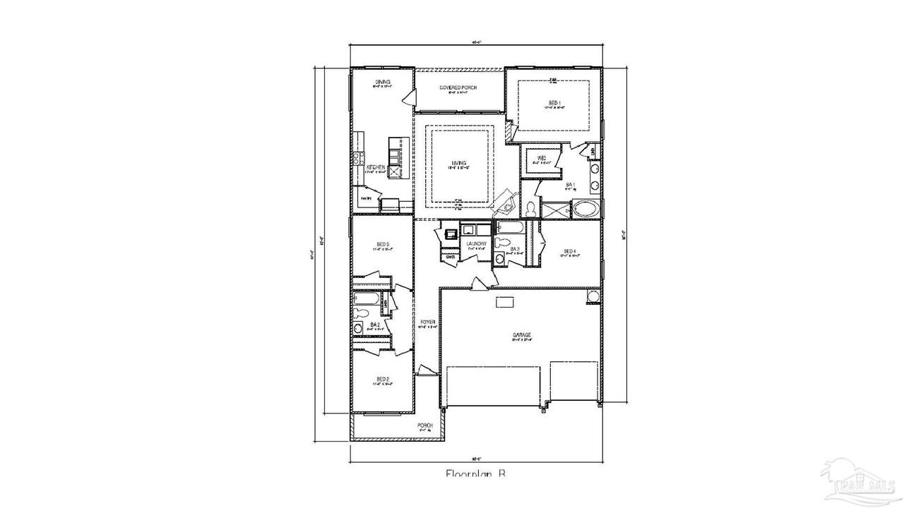
Welcome to the Madison, a new home floor plan at Reserve at Brookhaven in Cantonment! When you walk into the home, you are greeted by a long hallway that is the center point for bedrooms, the laundry room and garage, and leads to the open living room and kitchen. Beautiful engineered vinyl plank (EVP) flooring lines the main areas of the house and soft carpet covers the bedrooms. The bedroom closest to the garage also comes with its own bathroom, not shared in the main hallway. The bathrooms have beautiful white quartz countertops and white cabinets that enhance the beauty of this home. Entering the kitchen and living room area, you will notice plenty of natural sunlight illuminating the main area. The living room has tray ceilings that open the room, making your living space feel much more comfortable. The kitchen has stainless steel appliances and comes with beautiful white cabinets. The large island has plenty of storage in it and every surface has elegant white quartz countertops. The dining area is located by the back door leading to the covered rear patio. Walking into the large primary bedroom, you will also see tray ceilings and three windows that wash the room in natural sunlight. The primary bathroom has a spacious double vanity with white quartz countertops and white cabinetry. The walk-in closet is in the bathroom as well, perfect for when you get out of the separate tub or shower. Additional highlights include a 3-car garage, and a dedicated laundry room with storage. Located in Reserve at Brookhaven, residents can enjoy a community pool, and a playground, ideal for enjoying the Florida lifestyle!
-
4BEDS
-
0.19ACRES
-
3BATHS
-
01/2 BATHS
-
1,968SQFT
-
$210$/SQFT
School Information
Description
Welcome to the Madison, a new home floor plan at Reserve at Brookhaven in Cantonment! When you walk into the home, you are greeted by a long hallway that is the center point for bedrooms, the laundry room and garage, and leads to the open living room and kitchen. Beautiful engineered vinyl plank (EVP) flooring lines the main areas of the house and soft carpet covers the bedrooms. The bedroom closest to the garage also comes with its own bathroom, not shared in the main hallway. The bathrooms have beautiful white quartz countertops and white cabinets that enhance the beauty of this home. Entering the kitchen and living room area, you will notice plenty of natural sunlight illuminating the main area. The living room has tray ceilings that open the room, making your living space feel much more comfortable. The kitchen has stainless steel appliances and comes with beautiful white cabinets. The large island has plenty of storage in it and every surface has elegant white quartz countertops. The dining area is located by the back door leading to the covered rear patio. Walking into the large primary bedroom, you will also see tray ceilings and three windows that wash the room in natural sunlight. The primary bathroom has a spacious double vanity with white quartz countertops and white cabinetry. The walk-in closet is in the bathroom as well, perfect for when you get out of the separate tub or shower. Additional highlights include a 3-car garage, and a dedicated laundry room with storage. Located in Reserve at Brookhaven, residents can enjoy a community pool, and a playground, ideal for enjoying the Florida lifestyle!
© 2026 by the Multiple Listing Service of the Pensacola Association of REALTORS®. This information is believed to be accurate but is not guaranteed. Subject to verification by all parties. This data is copyrighted and may not be transmitted, retransmitted, copied, framed, repurposed, or altered in any way for any other site, individual and/or purpose without the express written permission of the Multiple Listing Service of the Pensacola Association of REALTORS®. Florida recognizes single and transaction agency relationships. Information Deemed Reliable But Not Guaranteed. Any use of search facilities of data on this site, other than by a consumer looking to purchase real estate, is prohibited. Data last updated: 2026-03-12T23:54:22.777.
