Description
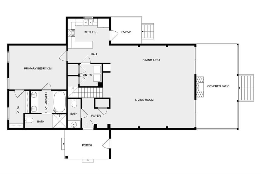
Welcome to your dream home in the prestigious, gated community of Steelwood! This stunning 3-bedroom, 3.5-bath residence is a must-see, offering timeless elegance, thoughtful design, and breathtaking golf course views. As you enter, you are greeted by a welcoming foyer that opens into a large, light-filled living room featuring soaring 23-foot ceilings, walls of windows, and sliding glass doors—creating an ideal space for entertaining while showcasing stunning views of the 5th tee box of the Steelwood Golf Course. The kitchen offers a clean, modern look with white cabinetry, quartz countertops, ample cabinet and counter space, and stainless steel appliances. The water heater and appliances were replaced in 2022. The spacious primary suite is conveniently located on the main level and features a luxurious ensuite bathroom with a double vanity, walk-in shower, and garden tub. Upstairs, you’ll find two additional bedrooms, each with its own ensuite bathroom, providing comfort and privacy. A half bath on the main level adds convenience for entertaining. Step outside to a magazine-worthy backyard, complete with a huge covered back porch featuring a wood-burning fireplace—perfect for enjoying serene mornings or relaxing evenings. The backyard is enclosed with a new aluminum fence and offers peaceful golf course views. Additional highlights include a NEW 2022 FORTIFIED roof, 2025 outside HVAC system, circular driveway with ample parking, storage/work room off the front porch, and a prime location near the back gate for easy access. Steelwood offers an unparalleled lifestyle with resort-style amenities including a full-size pool, kiddie pool, playground, pavilions, clubhouse, 200-acre lake, chapel, and pickleball courts. Experience the beauty, privacy, and charm that can only be found in Steelwood. Schedule your private showing today! Buyer to verify all information during due diligence.
-
3BEDS
-
0.17ACRES
-
2BATHS
-
11/2 BATHS
-
2,400SQFT
-
$229$/SQFT
School Information
Description
Welcome to your dream home in the prestigious, gated community of Steelwood! This stunning 3-bedroom, 3.5-bath residence is a must-see, offering timeless elegance, thoughtful design, and breathtaking golf course views. As you enter, you are greeted by a welcoming foyer that opens into a large, light-filled living room featuring soaring 23-foot ceilings, walls of windows, and sliding glass doors—creating an ideal space for entertaining while showcasing stunning views of the 5th tee box of the Steelwood Golf Course. The kitchen offers a clean, modern look with white cabinetry, quartz countertops, ample cabinet and counter space, and stainless steel appliances. The water heater and appliances were replaced in 2022. The spacious primary suite is conveniently located on the main level and features a luxurious ensuite bathroom with a double vanity, walk-in shower, and garden tub. Upstairs, you’ll find two additional bedrooms, each with its own ensuite bathroom, providing comfort and privacy. A half bath on the main level adds convenience for entertaining. Step outside to a magazine-worthy backyard, complete with a huge covered back porch featuring a wood-burning fireplace—perfect for enjoying serene mornings or relaxing evenings. The backyard is enclosed with a new aluminum fence and offers peaceful golf course views. Additional highlights include a NEW 2022 FORTIFIED roof, 2025 outside HVAC system, circular driveway with ample parking, storage/work room off the front porch, and a prime location near the back gate for easy access. Steelwood offers an unparalleled lifestyle with resort-style amenities including a full-size pool, kiddie pool, playground, pavilions, clubhouse, 200-acre lake, chapel, and pickleball courts. Experience the beauty, privacy, and charm that can only be found in Steelwood. Schedule your private showing today! Buyer to verify all information during due diligence.
© 2026 Gulf Coast Multiple Listing Service, Inc. All rights reserved. All information provided is deemed reliable but is not guaranteed or warranted and should be independently verified. The data relating to real estate for sale on this web site comes in part from the IDX/RETS Program of the Gulf Coast Multiple Listing Service, Inc. IDX/RETS real estate listings displayed which are held by other brokerage firms contain the name of the listing firm. The information being provided is for consumers' personal, non-commercial use and will not be used for any purpose other than to identify prospective properties consumers may be interested in purchasing. Data last updated: 2026-02-07T11:44:49.553.
The Coastal Connection at eXp Realty
