Description
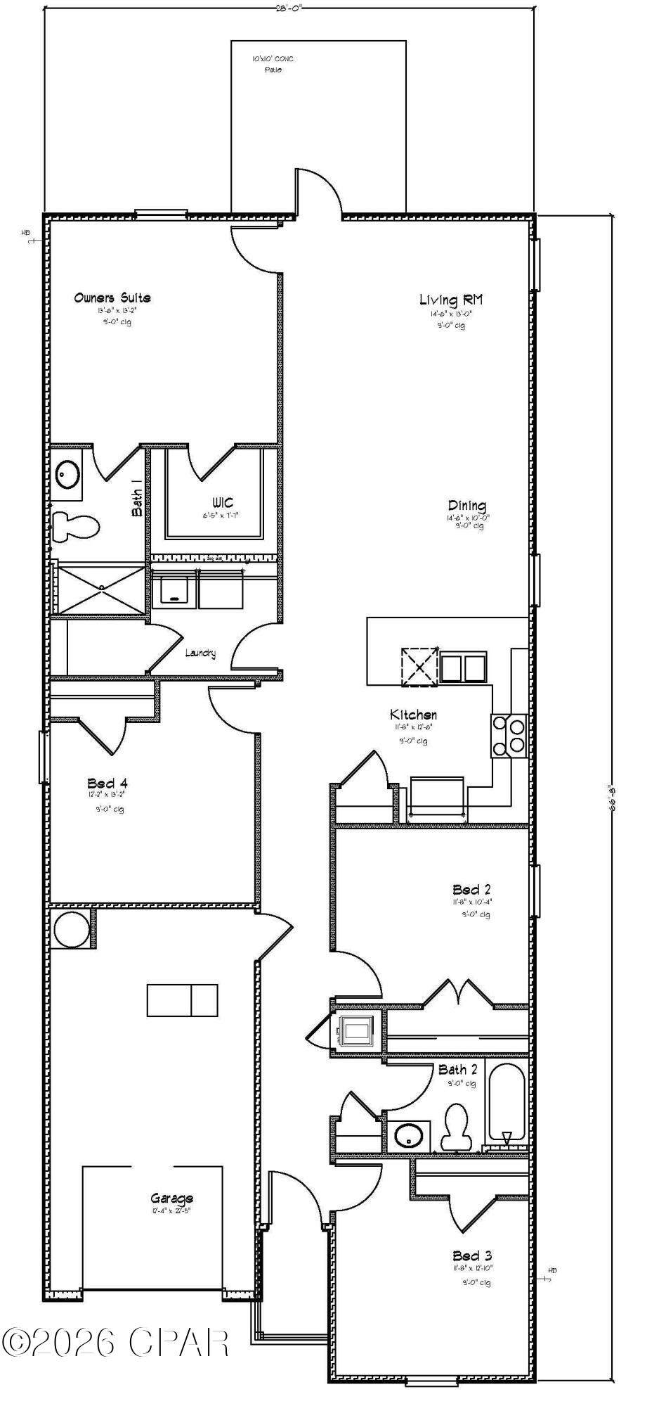
This pre-construction homesite offers the opportunity to secure new construction prior to groundbreaking. This property will be developed with the Camilla floorplan and built to current design standards and specifications. Buyers may have the ability to personalize select finishes depending on the stage of construction. Estimated completion timelines and build details available upon request. This cozy cottage-style home features four bedrooms and 2 bathrooms, all on one level, with 1,504 square feet of living space. Stylish and comfortable, this home is designed to suit your needs. The exterior of this home has a covered front entry and a single car garage. As you enter this home you will find a bright entry and a foyer that leads to the spacious open concept living area that seamlessly connects the kitchen, dining, and living rooms. The kitchen has upper and lower cabinetry for storage, a small pantry and a peninsula bar for with space for bar seating. The split bedroom plan ensures just the right amount of privacy. The primary bedroom serves as a retreat, featuring an ensuite bath and a spacious open closet. In the primary bath you will have a single vanity with lower cabinetry for storage and a step-in shower. This home will have EVP flooring throughout, quartz countertops, matte black plumbing fixtures and an appliance package to include a stove, microwave and dishwasher. Continuing back through the living area you will find the laundry room with space for a full-size washer and dryer and an additional storage room. There are three guest bedrooms, one just as you near the front entry hall and two located along the foyer that are separated by the shared bathroom. The guest bathroom has a single vanity and shower tub combination. At the back of the home, there is a patio that is accessible from the living area. Images are of Camilla model home and may include custom design features not available in other homes. Furnishings and decorative items are not included with home.
-
4BEDS
-
0.1ACRES
-
2BATHS
-
01/2 BATHS
-
1,528SQFT
-
$284$/SQFT
School Information
Description
This pre-construction homesite offers the opportunity to secure new construction prior to groundbreaking. This property will be developed with the Camilla floorplan and built to current design standards and specifications. Buyers may have the ability to personalize select finishes depending on the stage of construction. Estimated completion timelines and build details available upon request. This cozy cottage-style home features four bedrooms and 2 bathrooms, all on one level, with 1,504 square feet of living space. Stylish and comfortable, this home is designed to suit your needs. The exterior of this home has a covered front entry and a single car garage. As you enter this home you will find a bright entry and a foyer that leads to the spacious open concept living area that seamlessly connects the kitchen, dining, and living rooms. The kitchen has upper and lower cabinetry for storage, a small pantry and a peninsula bar for with space for bar seating. The split bedroom plan ensures just the right amount of privacy. The primary bedroom serves as a retreat, featuring an ensuite bath and a spacious open closet. In the primary bath you will have a single vanity with lower cabinetry for storage and a step-in shower. This home will have EVP flooring throughout, quartz countertops, matte black plumbing fixtures and an appliance package to include a stove, microwave and dishwasher. Continuing back through the living area you will find the laundry room with space for a full-size washer and dryer and an additional storage room. There are three guest bedrooms, one just as you near the front entry hall and two located along the foyer that are separated by the shared bathroom. The guest bathroom has a single vanity and shower tub combination. At the back of the home, there is a patio that is accessible from the living area. Images are of Camilla model home and may include custom design features not available in other homes. Furnishings and decorative items are not included with home.
© 2026 Central Panhandle Association of Realtors MLS. All rights reserved. IDX information is provided exclusively for consumers' personal, non-commercial use and may not be used for any purpose other than to identify prospective properties consumers may be interested in purchasing. Information is deemed reliable but is not guaranteed accurate by the MLS or The Coastal Connection at eXp Realty. Data last updated: 2026-03-13T00:04:13.367.

Listing provided courtesy of DR Horton Realty of Emerald Coast, LLC: 850-660-1701. Listing information © 2026 Central Panhandle Association of Realtors MLS.