Description
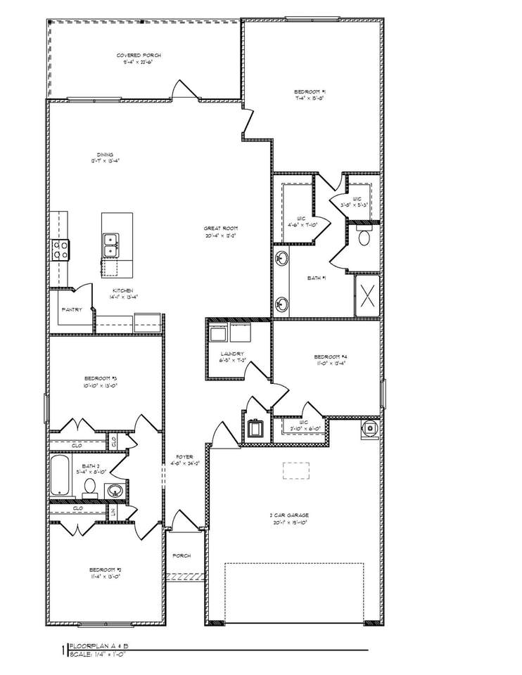
Welcome to 353 Holley Grove Lane, a new home at Holley Grove at Peach Creek in Santa Rosa Beach Florida. This floor plan features four bedrooms and two full bathrooms. Entering this home, you will notice the bright entry with the glass prairie door and a hall leading to the grand open living area. Two bedrooms are located off the entry hall with a full bath in between. The laundry room is located across the hall and offers plenty of space for a full-size washer and dryer. There is a fourth bedroom that could serve as an office space or den next to the laundry room. Each bedroom has plenty of natural light afforded by windows and spacious closets.
-
4BEDS
-
0.14ACRES
-
2BATHS
-
01/2 BATHS
-
2,108SQFT
-
$223$/SQFT
School Information
Description
Welcome to 353 Holley Grove Lane, a new home at Holley Grove at Peach Creek in Santa Rosa Beach Florida. This floor plan features four bedrooms and two full bathrooms. Entering this home, you will notice the bright entry with the glass prairie door and a hall leading to the grand open living area. Two bedrooms are located off the entry hall with a full bath in between. The laundry room is located across the hall and offers plenty of space for a full-size washer and dryer. There is a fourth bedroom that could serve as an office space or den next to the laundry room. Each bedroom has plenty of natural light afforded by windows and spacious closets.
Related Properties
© 2026 Emerald Coast Association of Realtors MLS. All rights reserved. IDX information is provided exclusively for consumers' personal, non-commercial use and may not be used for any purpose other than to identify prospective properties consumers may be interested in purchasing. Information is deemed reliable but is not guaranteed accurate by the MLS or The Coastal Connection at eXp Realty. Vendor Member number: 28178. Data last updated: 2026-02-14T00:00:30.52.
Vendor Member #28178.
