Description
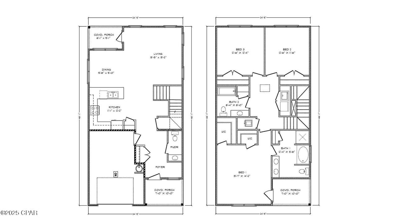
Welcome to 3533 Cottage Cove Boulevard located in tranquil Sanctuary Beach. This home is a resale. This floor plan features two stories with three bedrooms and two and a half bathrooms. The exterior of this home features a covered front porch on the main level and a covered balcony on the second level just off the primary bedroom. The kitchen is open to the dining and living areas and features a peninsula bar with space for seating. There is an appointed dining area that is surrounded with windows allowing for an abundance of natural light to filter through. Traditional 9' ceilings grace the living area which opens to the covered back porch where you can spend your mornings and evenings enjoying your coffee or beverage. The main level serves as the heart of the home with plenty of space and a powder room located just off the entry. EVP flooring is throughout the main level of the home, and the kitchen has been updated with an appliance package which includes, a stove, microwave, dishwasher, washer and dryer and refrigerator. Elegant 3 cm quartz countertops are complemented by the white upper and lower cabinetry. The stairs leading to the second level are accessible from the living area and lead to all three bedrooms. As you reach the second level you are met with a landing with laundry area and shared bathroom. Two bedrooms are located at the back of the home and have spacious closets. The Primary bedroom is located overlooking the front lawn and has a private ensuite bathroom. Two large closets are located in the primary bedroom and offer plenty of space for your wardrobe needs. The primary bathroom has the feel of a private oasis with a soak tub and a separate shower. The dual sink vanity offers lower cabinetry for storage. From the primary bedroom you have access to a private balcony where you can enjoy your mornings. Outside you will find a covered back patio and a privacy fence.
-
3BEDS
-
N/AACRES
-
2BATHS
-
01/2 BATHS
-
1,846SQFT
-
$302$/SQFT
School Information
Description
Welcome to 3533 Cottage Cove Boulevard located in tranquil Sanctuary Beach. This home is a resale. This floor plan features two stories with three bedrooms and two and a half bathrooms. The exterior of this home features a covered front porch on the main level and a covered balcony on the second level just off the primary bedroom. The kitchen is open to the dining and living areas and features a peninsula bar with space for seating. There is an appointed dining area that is surrounded with windows allowing for an abundance of natural light to filter through. Traditional 9' ceilings grace the living area which opens to the covered back porch where you can spend your mornings and evenings enjoying your coffee or beverage. The main level serves as the heart of the home with plenty of space and a powder room located just off the entry. EVP flooring is throughout the main level of the home, and the kitchen has been updated with an appliance package which includes, a stove, microwave, dishwasher, washer and dryer and refrigerator. Elegant 3 cm quartz countertops are complemented by the white upper and lower cabinetry. The stairs leading to the second level are accessible from the living area and lead to all three bedrooms. As you reach the second level you are met with a landing with laundry area and shared bathroom. Two bedrooms are located at the back of the home and have spacious closets. The Primary bedroom is located overlooking the front lawn and has a private ensuite bathroom. Two large closets are located in the primary bedroom and offer plenty of space for your wardrobe needs. The primary bathroom has the feel of a private oasis with a soak tub and a separate shower. The dual sink vanity offers lower cabinetry for storage. From the primary bedroom you have access to a private balcony where you can enjoy your mornings. Outside you will find a covered back patio and a privacy fence.
© 2025 Central Panhandle Association of Realtors MLS. All rights reserved. IDX information is provided exclusively for consumers' personal, non-commercial use and may not be used for any purpose other than to identify prospective properties consumers may be interested in purchasing. Information is deemed reliable but is not guaranteed accurate by the MLS or The Coastal Connection at eXp Realty. Data last updated: 2025-11-07T10:04:02.88.

Listing provided courtesy of DR Horton Realty of Emerald Coast, LLC: 850-660-1701. Listing information © 2025 Central Panhandle Association of Realtors MLS.