Description
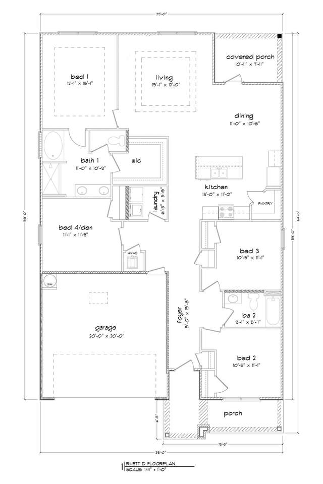
Welcome to 323 Holley Grove Lane, a new home under construction at Holley Grove at Peach Creek in Santa Rosa Beach, Florida. As you step inside the Rhett floor plan, you will find warm entry hall that unfolds into a generously sized living area, where natural light creates an inviting atmosphere. The heart of the home, an expansive kitchen, has a practical center island with quartz countertops, perfect for meal prep and casual dining. With plenty of cabinetry and a large corner pantry, storage will never be a concern. Entertaining is a breeze with the kitchen's seamless flow into the living and dining areas with EVP flooring throughout. The kitchen has a stainless-steel appliance including a smooth top stove, microwave and dishwasher. The heart of the home, an expansive kitchen, has a practical center island with quartz countertops, perfect for meal prep and space for bar seating. It has white upper and lower cabinetry throughout and a large corner pantry where storage will never be a concern. Entertaining is a breeze with the kitchen's seamless flow into the living and dining areas with EVP flooring throughout. The kitchen has a stainless-steel appliance including a smooth top stove, microwave and dishwasher. The primary bedroom is tucked away for privacy and features EVP flooring, and a spacious ensuite bath complete with a dual sink vanity, separate shower, and indulgent soak tub and a large closet. The home's three additional bedrooms, each with substantial closets, share a full bathroom equipped with a shower-tub combo. A large laundry room off the entry hall adds to the home's practicality. Additionally, the two-car garage provides ample space for vehicles and storage. Outside, the covered entry and back patio offer the perfect backdrop for relaxation or dining under the Florida sky.
-
4BEDS
-
N/AACRES
-
2BATHS
-
01/2 BATHS
-
1,856SQFT
-
$258$/SQFT
School Information
Description
Welcome to 323 Holley Grove Lane, a new home under construction at Holley Grove at Peach Creek in Santa Rosa Beach, Florida. As you step inside the Rhett floor plan, you will find warm entry hall that unfolds into a generously sized living area, where natural light creates an inviting atmosphere. The heart of the home, an expansive kitchen, has a practical center island with quartz countertops, perfect for meal prep and casual dining. With plenty of cabinetry and a large corner pantry, storage will never be a concern. Entertaining is a breeze with the kitchen's seamless flow into the living and dining areas with EVP flooring throughout. The kitchen has a stainless-steel appliance including a smooth top stove, microwave and dishwasher. The heart of the home, an expansive kitchen, has a practical center island with quartz countertops, perfect for meal prep and space for bar seating. It has white upper and lower cabinetry throughout and a large corner pantry where storage will never be a concern. Entertaining is a breeze with the kitchen's seamless flow into the living and dining areas with EVP flooring throughout. The kitchen has a stainless-steel appliance including a smooth top stove, microwave and dishwasher. The primary bedroom is tucked away for privacy and features EVP flooring, and a spacious ensuite bath complete with a dual sink vanity, separate shower, and indulgent soak tub and a large closet. The home's three additional bedrooms, each with substantial closets, share a full bathroom equipped with a shower-tub combo. A large laundry room off the entry hall adds to the home's practicality. Additionally, the two-car garage provides ample space for vehicles and storage. Outside, the covered entry and back patio offer the perfect backdrop for relaxation or dining under the Florida sky.
Related Properties
© 2026 Emerald Coast Association of Realtors MLS. All rights reserved. IDX information is provided exclusively for consumers' personal, non-commercial use and may not be used for any purpose other than to identify prospective properties consumers may be interested in purchasing. Information is deemed reliable but is not guaranteed accurate by the MLS or The Coastal Connection at eXp Realty. Vendor Member number: 28178. Data last updated: 2026-02-07T11:00:32.83.
Vendor Member #28178.
