Description
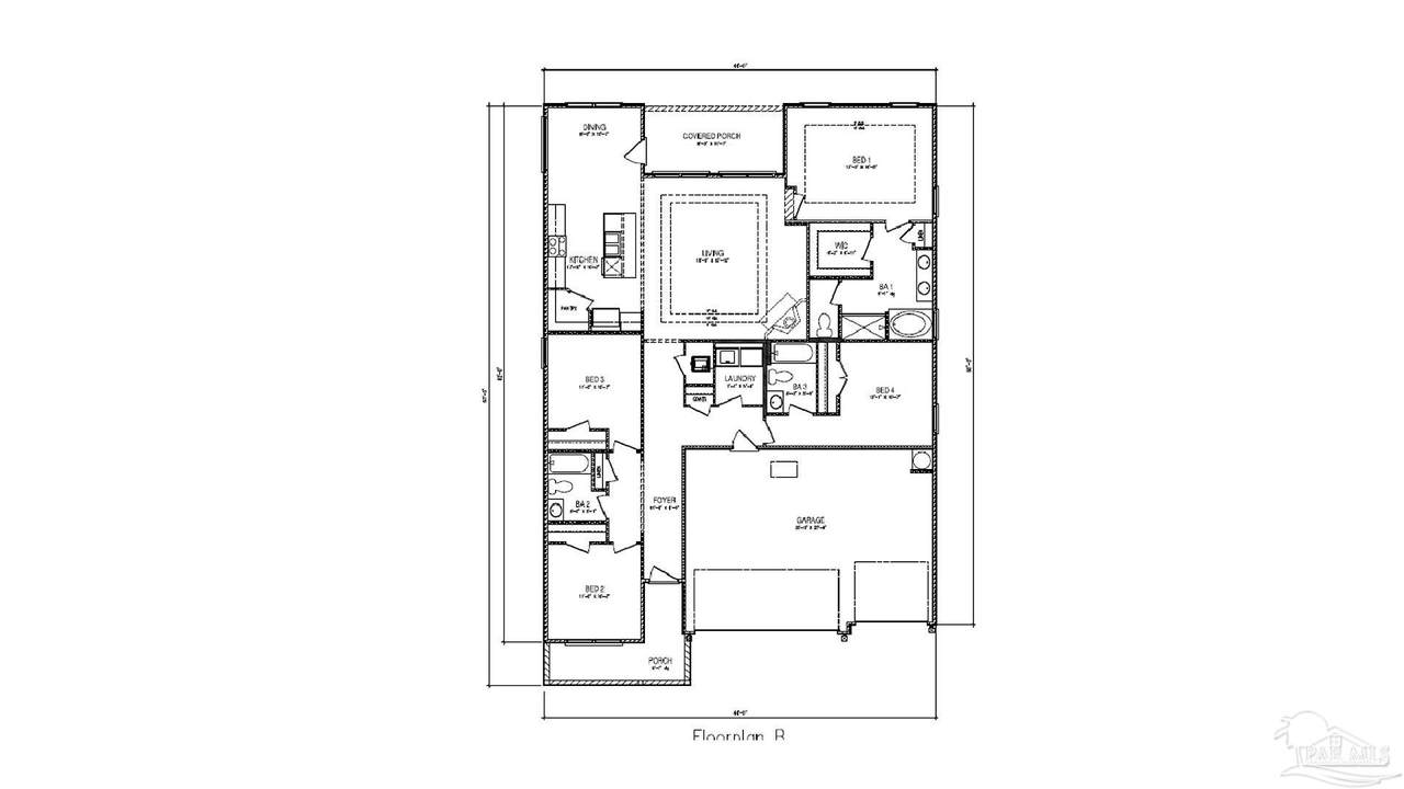
Welcome to the Madison Plan in the Grove at Berryhill community in Milton, FL! This 4 bedroom, 3 bath home offers just under 2,000 sq ft of thoughtfully designed space with tray ceilings and a bright, open layout. The kitchen features quartz countertops, stainless steel appliances, and a central island that flows into the spacious living and dining areas—perfect for entertaining. The private primary suite offers a luxurious retreat with a soaking tub, walk-in shower, double vanity, and generous walk-in closet. Two front bedrooms share a full bath, while a separate fourth bedroom with its own ensuite provides the perfect setup for guests or a home office. Additional highlights include a 3-car garage, a dedicated laundry room with storage, and covered back patio. Situated in a quiet, family-friendly neighborhood, the Grove at Berryhill offers easy access to local schools, parks, and all the charm of downtown Milton.
-
4BEDS
-
0.18ACRES
-
3BATHS
-
01/2 BATHS
-
1,968SQFT
-
$203$/SQFT
School Information
Description
Welcome to the Madison Plan in the Grove at Berryhill community in Milton, FL! This 4 bedroom, 3 bath home offers just under 2,000 sq ft of thoughtfully designed space with tray ceilings and a bright, open layout. The kitchen features quartz countertops, stainless steel appliances, and a central island that flows into the spacious living and dining areas—perfect for entertaining. The private primary suite offers a luxurious retreat with a soaking tub, walk-in shower, double vanity, and generous walk-in closet. Two front bedrooms share a full bath, while a separate fourth bedroom with its own ensuite provides the perfect setup for guests or a home office. Additional highlights include a 3-car garage, a dedicated laundry room with storage, and covered back patio. Situated in a quiet, family-friendly neighborhood, the Grove at Berryhill offers easy access to local schools, parks, and all the charm of downtown Milton.
Related Properties
© 2026 by the Multiple Listing Service of the Pensacola Association of REALTORS®. This information is believed to be accurate but is not guaranteed. Subject to verification by all parties. This data is copyrighted and may not be transmitted, retransmitted, copied, framed, repurposed, or altered in any way for any other site, individual and/or purpose without the express written permission of the Multiple Listing Service of the Pensacola Association of REALTORS®. Florida recognizes single and transaction agency relationships. Information Deemed Reliable But Not Guaranteed. Any use of search facilities of data on this site, other than by a consumer looking to purchase real estate, is prohibited. Data last updated: 2026-03-13T06:54:46.01.
