Description
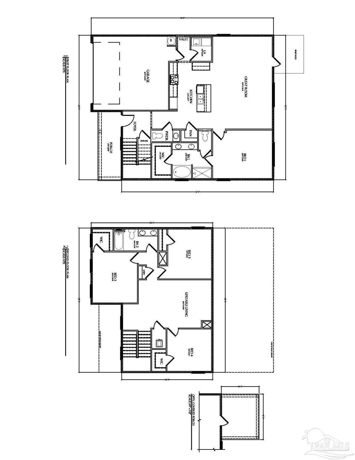
Welcome to Deer Ridge Crossing in Gulf Breeze, FL! The stunning Belfort floor plan is a well-designed 2 story model. Highly desirable open concept. The kitchen, living room & dining area flow together for relaxed living. Open kitchen features: all stainless-steel appliances, pantry, Quartz kitchen countertops, nice island, smooth-top range, built in microwave & quiet dishwasher. Bedroom 1 on the first floor offers a spacious walk-in closet, & adjoining bath has a double vanity, large shower, linen and water closet. All baths offer Quartz countertops. Covered back patio, Smart Hm. system & more. This home comes standard with a Smart Home Technology package. Beautiful wood look engineered vinyl plank flooring throughout with nice carpet in the bedrooms. Fabric hurricane window protection is included & the Smart Home Connect package. Gulf Breeze (Midway) location.
-
4BEDS
-
0.13ACRES
-
2BATHS
-
11/2 BATHS
-
2,384SQFT
-
$178$/SQFT
School Information
Description
Welcome to Deer Ridge Crossing in Gulf Breeze, FL! The stunning Belfort floor plan is a well-designed 2 story model. Highly desirable open concept. The kitchen, living room & dining area flow together for relaxed living. Open kitchen features: all stainless-steel appliances, pantry, Quartz kitchen countertops, nice island, smooth-top range, built in microwave & quiet dishwasher. Bedroom 1 on the first floor offers a spacious walk-in closet, & adjoining bath has a double vanity, large shower, linen and water closet. All baths offer Quartz countertops. Covered back patio, Smart Hm. system & more. This home comes standard with a Smart Home Technology package. Beautiful wood look engineered vinyl plank flooring throughout with nice carpet in the bedrooms. Fabric hurricane window protection is included & the Smart Home Connect package. Gulf Breeze (Midway) location.
Related Properties
© 2026 by the Multiple Listing Service of the Pensacola Association of REALTORS®. This information is believed to be accurate but is not guaranteed. Subject to verification by all parties. This data is copyrighted and may not be transmitted, retransmitted, copied, framed, repurposed, or altered in any way for any other site, individual and/or purpose without the express written permission of the Multiple Listing Service of the Pensacola Association of REALTORS®. Florida recognizes single and transaction agency relationships. Information Deemed Reliable But Not Guaranteed. Any use of search facilities of data on this site, other than by a consumer looking to purchase real estate, is prohibited. Data last updated: 2026-03-09T12:54:25.15.
