Description
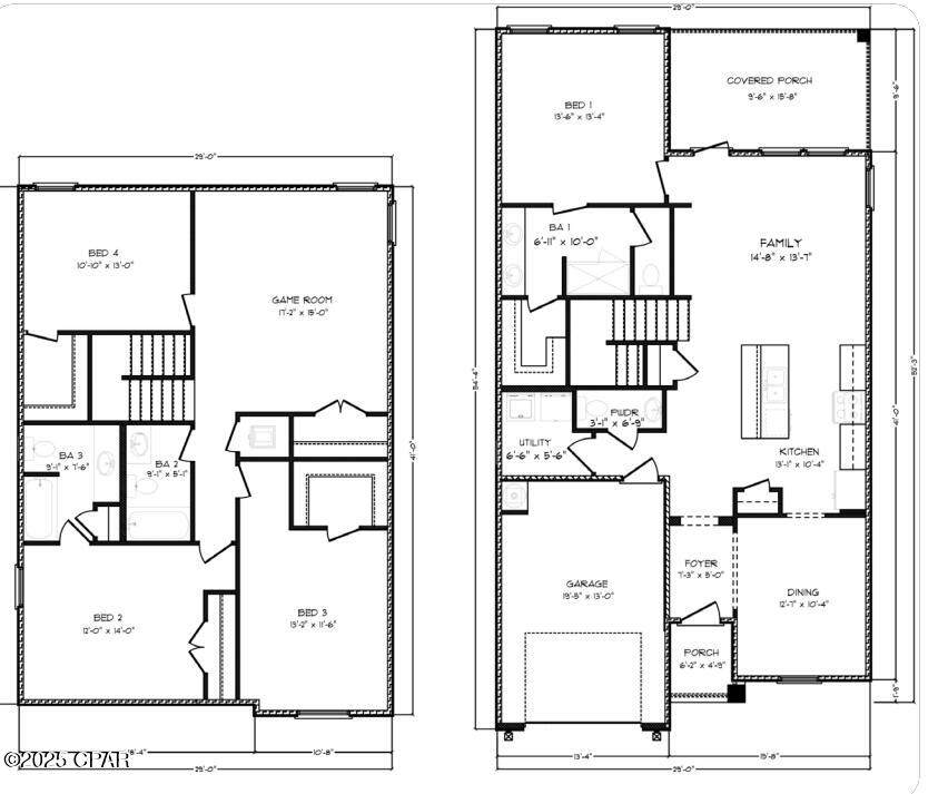
Welcome to the Alabaster a new home floorplan located at Buffer Farms in Port Saint Joe, FL. The Alabaster is a masterfully designed single-family residence with four bedrooms and three and a half bathrooms. This home offers a perfect blend of elegance and relaxation, ideally suited for those in search of an exquisite second home or a serene vacation retreat. Spanning two captivating stories, this home boasts 4 generously sized bedrooms, 3.5 well-appointed bathrooms, and the convenience of a single car garage. As you step through the inviting covered entry you enter a graceful foyer that flows seamlessly into an elegant dining area, setting the stage for memorable family gatherings. The heart of the Alabaster features an open-concept kitchen and family room, where a spacious center island, ample pantry, and abundant cabinetry invite culinary exploration and effortless entertaining. Quartz countertops, stainless-steel appliances, and EVP flooring accentuate this home beautifully making you feel right at home. Tranquility defines the main-level primary suite, complete with a luxe ensuite bath featuring a dual sink vanity, an oversized shower, and a spacious walk-in closet. Venture upstairs to discover a versatile living space that is ideal for media enjoyment or as an additional lounge space--centrally located by three additional bedrooms. Each additional bedroom has been designed with spacious closets and two share a bath while the fourth bedroom has a private ensuite bathroom. Each bathroom is also equipped with quartz countertops and white cabinetry throughout the home. On the outside of the home, you will see beautiful Hardie board siding, a covered rear patio area, and spacious yards to enjoy those unbeatable Florida sunsets. The Alabaster is an exciting addition to the lineup of homes at Buffer Farms. Schedule a tour to see this beautiful home today!
-
4BEDS
-
0.21ACRES
-
3BATHS
-
11/2 BATHS
-
2,245SQFT
-
$158$/SQFT
School Information
Description
Welcome to the Alabaster a new home floorplan located at Buffer Farms in Port Saint Joe, FL. The Alabaster is a masterfully designed single-family residence with four bedrooms and three and a half bathrooms. This home offers a perfect blend of elegance and relaxation, ideally suited for those in search of an exquisite second home or a serene vacation retreat. Spanning two captivating stories, this home boasts 4 generously sized bedrooms, 3.5 well-appointed bathrooms, and the convenience of a single car garage. As you step through the inviting covered entry you enter a graceful foyer that flows seamlessly into an elegant dining area, setting the stage for memorable family gatherings. The heart of the Alabaster features an open-concept kitchen and family room, where a spacious center island, ample pantry, and abundant cabinetry invite culinary exploration and effortless entertaining. Quartz countertops, stainless-steel appliances, and EVP flooring accentuate this home beautifully making you feel right at home. Tranquility defines the main-level primary suite, complete with a luxe ensuite bath featuring a dual sink vanity, an oversized shower, and a spacious walk-in closet. Venture upstairs to discover a versatile living space that is ideal for media enjoyment or as an additional lounge space--centrally located by three additional bedrooms. Each additional bedroom has been designed with spacious closets and two share a bath while the fourth bedroom has a private ensuite bathroom. Each bathroom is also equipped with quartz countertops and white cabinetry throughout the home. On the outside of the home, you will see beautiful Hardie board siding, a covered rear patio area, and spacious yards to enjoy those unbeatable Florida sunsets. The Alabaster is an exciting addition to the lineup of homes at Buffer Farms. Schedule a tour to see this beautiful home today!
© 2026 Central Panhandle Association of Realtors MLS. All rights reserved. IDX information is provided exclusively for consumers' personal, non-commercial use and may not be used for any purpose other than to identify prospective properties consumers may be interested in purchasing. Information is deemed reliable but is not guaranteed accurate by the MLS or The Coastal Connection at eXp Realty. Data last updated: 2026-03-13T07:04:24.83.

Listing provided courtesy of DR Horton Realty of Emerald Coast, LLC: 850-660-1701. Listing information © 2026 Central Panhandle Association of Realtors MLS.